Appartamento in vendita a Milano

garian_44

Via Garian 44, 20146 Milano (MI)

Cod. AI260012

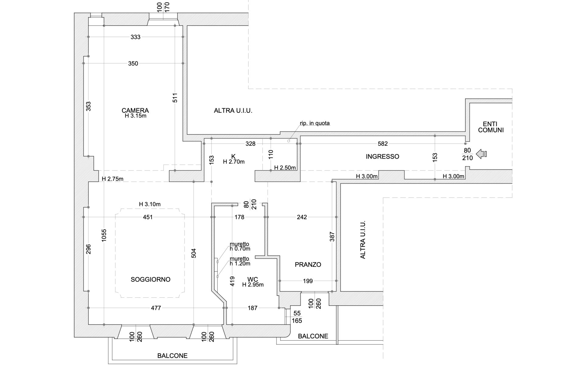
La Tua Tela Bianca in un Prestigioso Palazzo d'Epoca Via Garian 44 Il fascino della storia incontra il tuo progetto futuro. Situato in uno dei tratti più eleganti e riservati di via Garian, al primo piano senza ascensore, all'interno di un affascinante palazzo d'epoca, che conserva intatto il decoro e l'eleganza della vecchia Milano. Questa proprietà è la soluzione definitiva per chi cerca il carattere unico delle dimore storiche e desidera modellarne gli interni secondo il proprio stile di vita. Vivere in un palazzo d'epoca significa godere di dettagli architettonici ricercati, soffitti importanti e un contesto di rappresentanza che conferisce valore immediato e prestigio al tuo investimento. A seconda delle tue necessità, l'immobile può essere reinterpretato come: Un moderno e arioso Open-Space, per chi ama i volumi ampi e la fluidità degli ambienti. Un funzionale trilocale, ottimizzando ogni metro quadro per creare una zona giorno living e due camere da letto distinte. Location d'Elite: La tranquillità di una via residenziale storica nel cuore del quartiere Washington, circondata da servizi d'eccellenza, scuole di prestigio e botteghe storiche. Smetti di cercare la casa perfetta tra le mura degli altri. Vieni a disegnarla tra le mura della storia. Nota informativa: Le immagini e i render pubblicati sono puramente illustrativi e rappresentano una delle possibili realizzazioni degli spazi (Open-space o Trilocale). Tali simulazioni non costituiscono elemento contrattuale e hanno il solo scopo di suggerire il potenziale di trasformazione dell'immobile a seguito della ristrutturazione.

Logo agenzia
Agenzia
Qosmo Immobiliare
Locali
3 Locali
Superficie m2
95 m2
Anno edificio
1920
Bagni
1
Annuncio aggiornato il 25/03/26

Caratteristiche

Tipologia

Appartamento

Metratura

95 m²

Stato

Da ristrutturare

Locali

3

Bagni

1

Garage

0

Giardino

no

Climatizzatore

Cassaforte

Doppi vetri

Fibra Ottica

Impianto Domotica

Tapparelle Elettriche

Tenda da Sole

Zanzariere

ZONA CENTRALE

COMODO AI SERVIZI

POSSIBILITA' SOPPALCO

VICINANZA SUPERMERCATI

VICINANZA SERVIZI PRINCIPALI

VICINANZA OSPEDALE

VICINANZA CENTRO COMMERCIALE

VICINANZA NEGOZI

VICINANZA VIE DI COMUNICAZIONE

VICINANZA STAZIONE

Informazioni sul prezzo

Prezzo
€ 550.000
Prezzo al m2
5.789 €/m²

Dettaglio spese

Spese annuali
2.400 €
Spese mensili
200 €

Efficienza costi

Classe
D